Maison de l'Eau

2020

Siège social du SIVOM Olivier de Serres

Lieu d'activité Espace Public Livré St-Jean-le-Centenier (07)

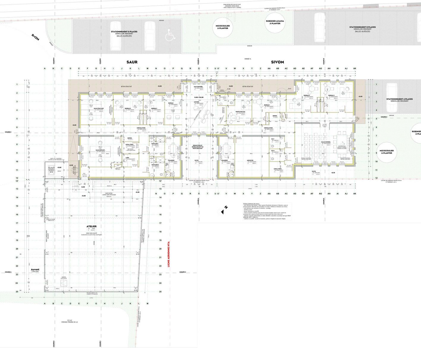
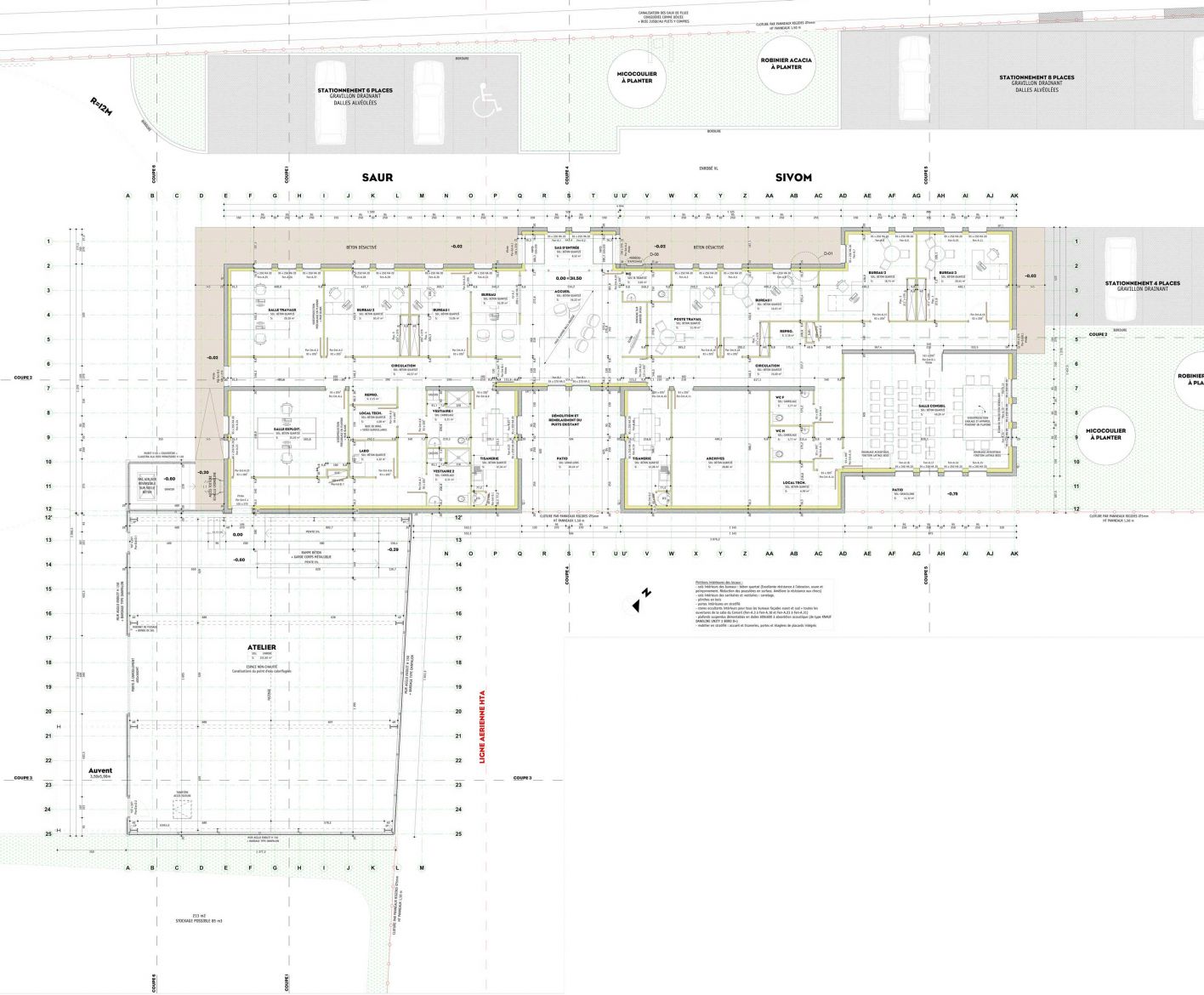
Le bâtiment devant trouver une accroche au terrain tout en s’inscrivant dans l’ensemble des constructions voisines et ainsi en conserver leur trame, c’est l’alignement avec la RD qui sera retenu. Cet axe étant une belle ligne droite à cet endroit, il nous paraissait intéressant, dans un souci de cohérence, d’y répondre nous aussi par des lignes rigides et dans le même plan que cette voie prioritaire.

Ainsi, on distingue 2 volumes représentant respectivement les bureaux et l’atelier. La perception du site depuis l’extérieur a donc été étudiée afin d’en donner une lecture claire, mais aussi un aspect paysagé soigné où à terme le végétal aura une réelle place prépondérante dans l’agencement des espaces. Le béton, traité ici noblement par le choix d’un autoplaçant qui offre une qualité des parements accrue au bâtiment et un aspect net et entretenu au site. Sur la partie atelier, du Dampalon est mis en œuvre sur tout le pourtour du bâtiment. Le coloris choisi est vert d’eau afin de coller graphiquement à l’image de la maison de l’eau

Données et informations
Maîtrise d'ouvrage

S.D.E.A. mandataire du SIVOM Olivier de Serres

Maîtrise d'œuvre

Estève & Dutriez Architectes BETREC IG tous corps d’état

Surface

735 m2 SDO Ext. 1 400 m2 env.

Montant des travaux

1,2 M€ HT

Programme

Bureaux, ateliers, accueil clientèle, zone techniques, stationnements

Mission

Loi MOP base + EXE + OPC

Localisation